仙台 賃貸 アパート マンション 不動産 のご紹介

任せて安心君
問合わせ
賃 貸 土地建物
売 買

お客様の声
会社紹介 代表者
の独り言
 
 オーナー様

   物件の紹介は任せて安心 仙台アパートセンター

 
所在地 交通 賃貸料
管理費
敷金 礼金 占有面積
(u)
駐車場
泉区
 向陽台
  3丁目
バス
「向陽台4丁目」停
       徒歩1分
96,000円 2ヶ月 1ヶ月 46.80u     有り
 (8,640円/月

☆テナント一口メモ☆
 ◎ 事務所・店舗(飲食店 可) OK! 
 ◎24時間利用可能♪
 ◎角部屋・日当たり良好♪

◎オープンキッチン、室内洗濯置場、給湯!!



方  位 北西・南東
構造・階層 鉄骨造 2階建1階部分
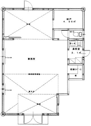
間取り詳細 左図参照
設 備  ・室内洗濯機置き場
 ・照明
 ・洗面台
 ・トイレ
 ・収納

特記事項  *保険加入要
 *飲食店
築年月日 1995年1月 完成
取引態様 仲介
 
周辺地図はこちら





 

    

                            広々ゆったり陽当たり良好な空間です。                             
         

    収納も抜群♪                 洗面とトイレも清潔感があります♪            ゆったりキッチン♪ 



所在地 交通 賃貸料
管理費
敷金 礼金 占有面積
(u)
駐車場
泉区
 向陽台
  3丁目
バス
「向陽台4丁目」停
       徒歩1分
115,000円〜

2,000円
3ヶ月 なし 62.00u
(18.8坪)
1台付き無料
※2台目から有料
 (5,400円/月

☆テナント一口メモ☆
 ◎新築物件!
 ◎環境・立地 良好!!
 ◎収納スペース多め!
 ◎南向き・日当たり良好♪
 ◎通りに面しアクセス良好♪

方  位 南向き
構造・階層 木造 2階建1階部分
間取り詳細 左図参照
設 備  電気/上下水道/プロパン
 ・給湯
 ・湯沸し器
 ・流し台
 ・トイレ
 ・照明器具
 ・収納スペース(中2階部分5〜6帖) 
特記事項  *保険加入要
 *飲食店不可
建築時期 2012年8月 完成予定
取引態様 仲介
 
周辺地図はこちら





 貴方に代わって最適なお部屋をお探しし、ご紹介致します。

貴方に仙台アパートセンターだけの「任せて安心君」ご奉仕 仙台全域ご紹介 
株式会社仙台アパートセンター
 お問い合せ電話:022−773−6221  
   FAX:022−341−5713
 E-mail:sen_apasen@ymail.ne.jp  
    営業時間:4月〜12月:10時〜17時   1月〜3月:9時30分〜17時   定休日:毎週水曜日・日曜日・祝日  ※1月〜3月 無休